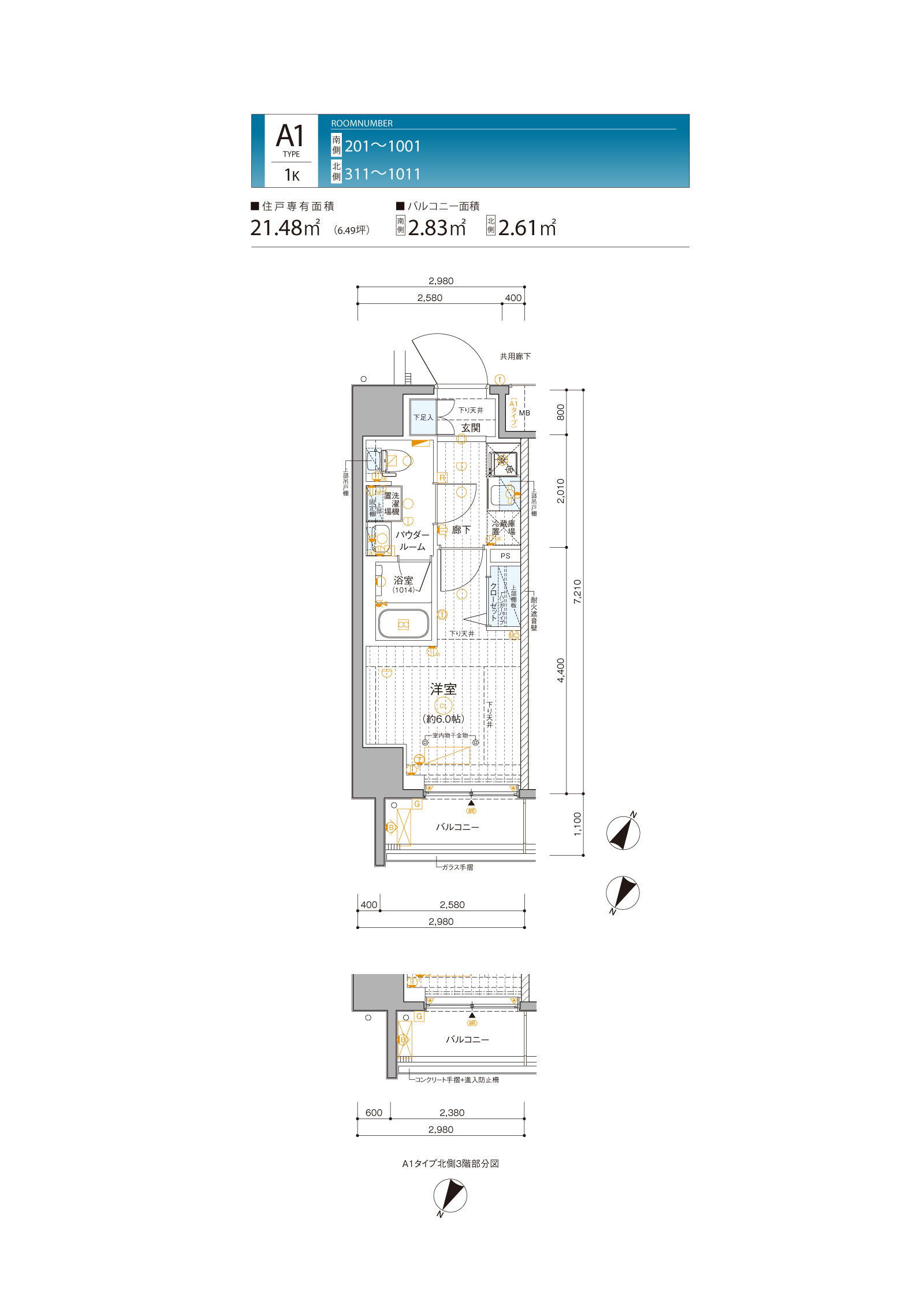
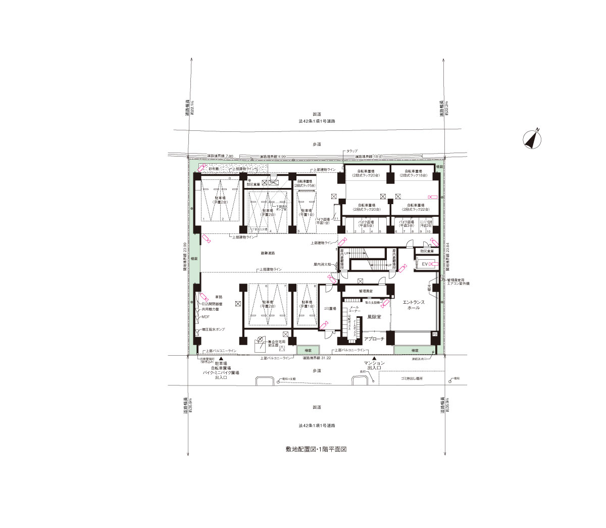
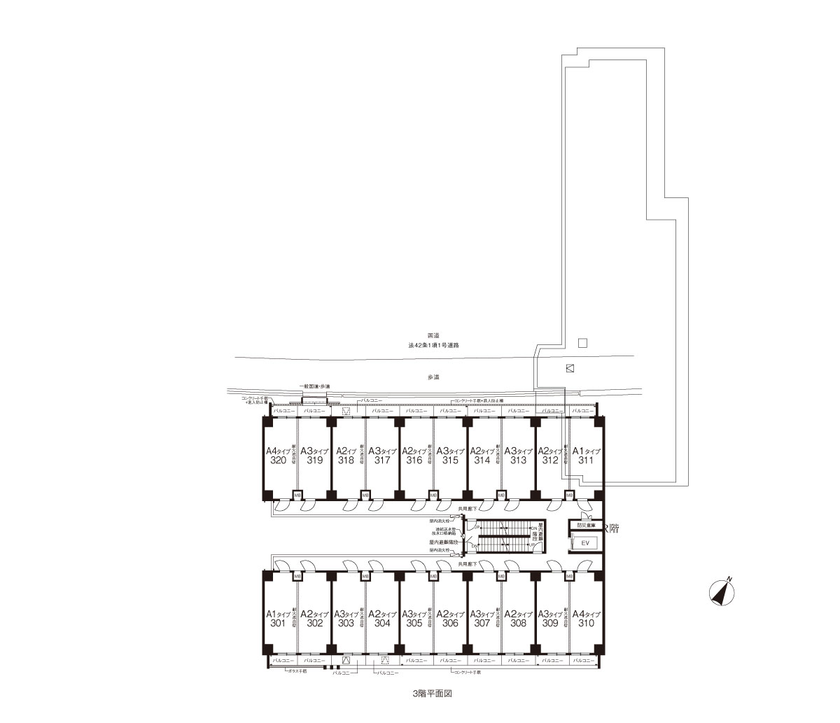
Room Layout
図面集をご覧になる前に/共通事項 [ご一読いただき、あらかじめご了承ください。]
- ■当図面集は、一部「重要事項説明書」を兼ねております。ご購入に際して、この図面をよくご覧になり、詳細は係員にお尋ね下さい。■この図面集に記載されている各図面は、設計図書を基に、その概略をわかりやすく表現する為に作成したもので、各部の詳細については表現を省いている場合があります。■図面と現状に相違がある場合は、現状を優先とします。■専有面積は壁芯計算の面積を表示しております。登記面積は内法計算の面積になりますので若干減少します。■専有面積には、住戸内の PS(パイプスペース) 面積・MB(メーターボックス) 面積を含んでいます。■1㎡は0.3025 坪で換算し、小数点第2位未満は切り捨てとしております。■各室の帖数表示は、壁芯計算による面積を1.62㎡(約1帖分)の面積で割り、小数点第1位未満は切り捨てとしております。■寸法の単位は、道路幅員、境界寸法はメートル(m)となり、それ以外はミリメートル(mm)となります。■方位、縮尺等については、印刷の都合上、多少の誤差が生じる場合があります。■仕上・仕様、設備機器等は、施工上の理由および改良、商品の廃番の為、変更が生じる場合があります。■図面及び概要・仕上表に関しては、諸官庁の指導及び施工上の都合により、仕上げ等が一部変更になる場合があります。■設備記号については、実際の取付位置と若干異なる場合があります。■窓ガラスは、透明ガラス、型ガラス(不透明ガラス)、網入りガラス、網入り型ガラス、防犯ガラス等各住戸によって変わる場合があります。■近隣居住者のプライバシー保護の為、窓に型ガラス(不透明ガラス)及び窓・バルコニー・共用廊下・屋外避難階段等に目隠しスクリーン等を設置する場合があります。■間取りタイプ図の中の点線は、梁型あるいは排気ダクト等を収容するための下り天井、斜め天井、斜め梁型、斜め柱型等の位置を表しています。■壁厚・柱・下り天井・梁の形状は、施工上の理由により変更になる場合があります。■階によって柱・梁の大きさ、壁の厚さが多少相違する場合があります。■表記以外にも設備・排水用の点検口が付く場合があります。■フェンス等の高さは、敷地及び敷地周辺の状況により変更になる場合があります。■扉の開く角度は、戸当たり等により多少異なることがあります。■バルコニー・共用廊下・屋外避難階段には、雨水排水のためのドレン・タテ樋が付きます。■屋根や屋上には、排水通気用の配管を設置している場合があり、風向き等により臭気が発生する場合があります。■風の強さにより洗濯物やバルコニーに置いてあるものが飛ばされる恐れがあります。飛散落下しない様に充分ご注意下さい。■家具・家電品等の機種選定については、現地で実際の寸法、搬入経路等をご確認の上、ご購入されることをお薦めします。設置場所によっては、機種が限定される場合もあります。■将来のエアコン入替、設置にあたり、住戸タイプによっては標準工事費以外に別途工事費が加算される場合等があります。エアコンご購入の際は、ご購入先と打ち合わせを行い、工事の可否を含めて必要であれば現地調査を依頼し、充分に確認してからご購入されることをお薦めします。■現地周辺の隣接建物及び周辺環境については、現地にて充分ご確認の上、ご購入・ご入居されることをお薦めします。







